Trillium Creative Office Building

TRILLIUM CREATIVE OFFICE BUILDING

CLOSE
  • Location Woodland Hills, California
  • Status Pre-Construction
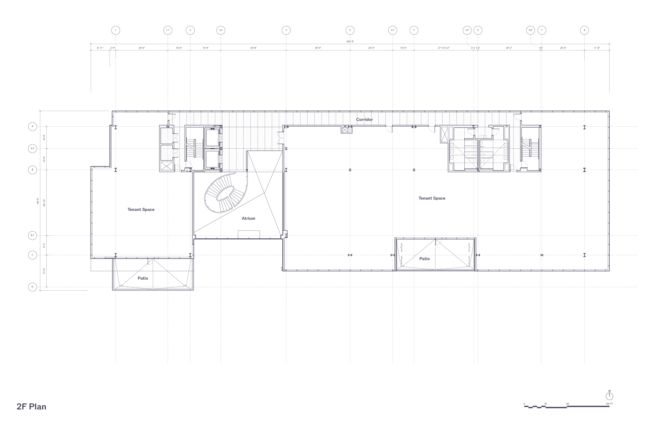
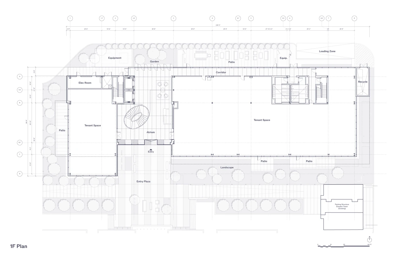
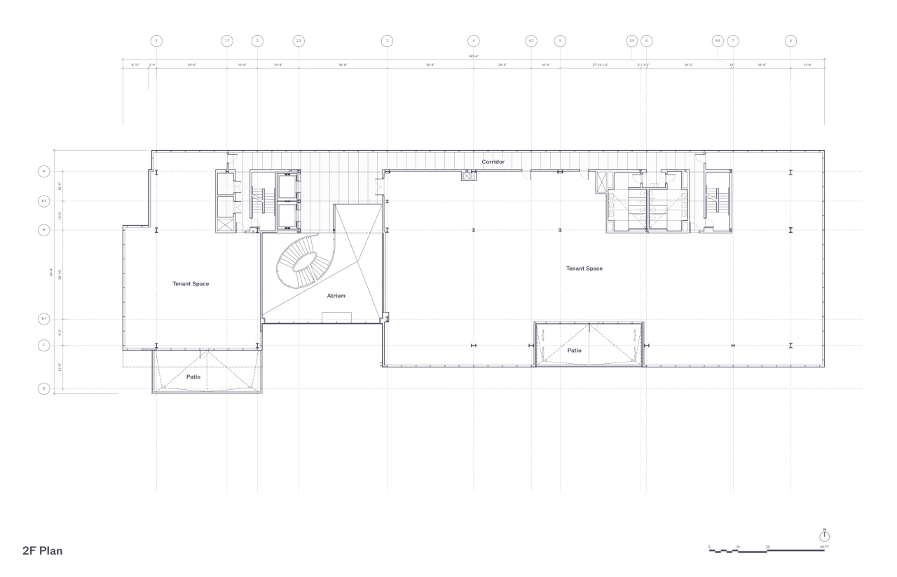
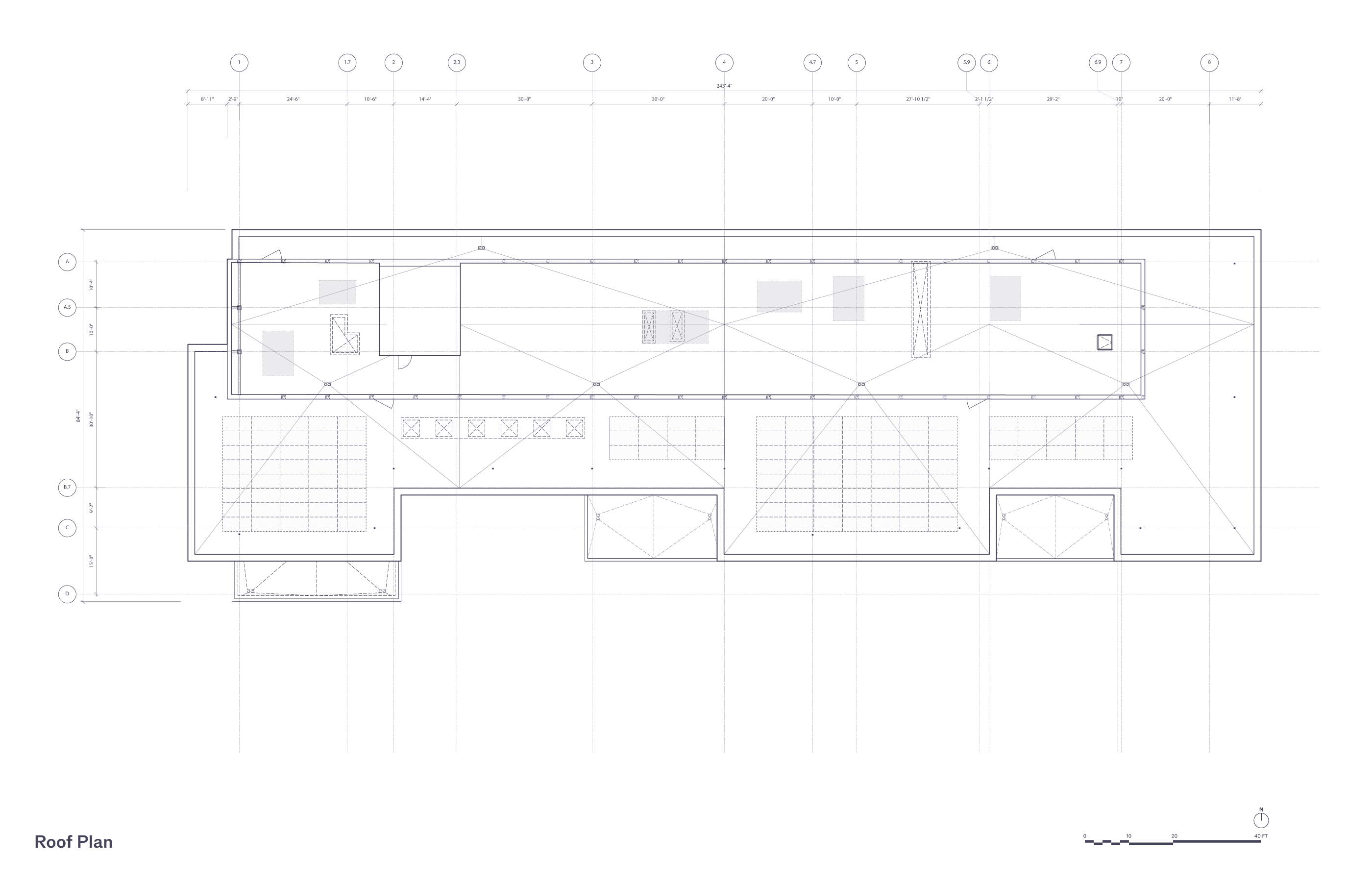
  • Program Area 4,000 SM / 43,100 SF
  • Height 3 Stories / 20M / 68'
  • Parking 404 Stalls / 15 Bicycle

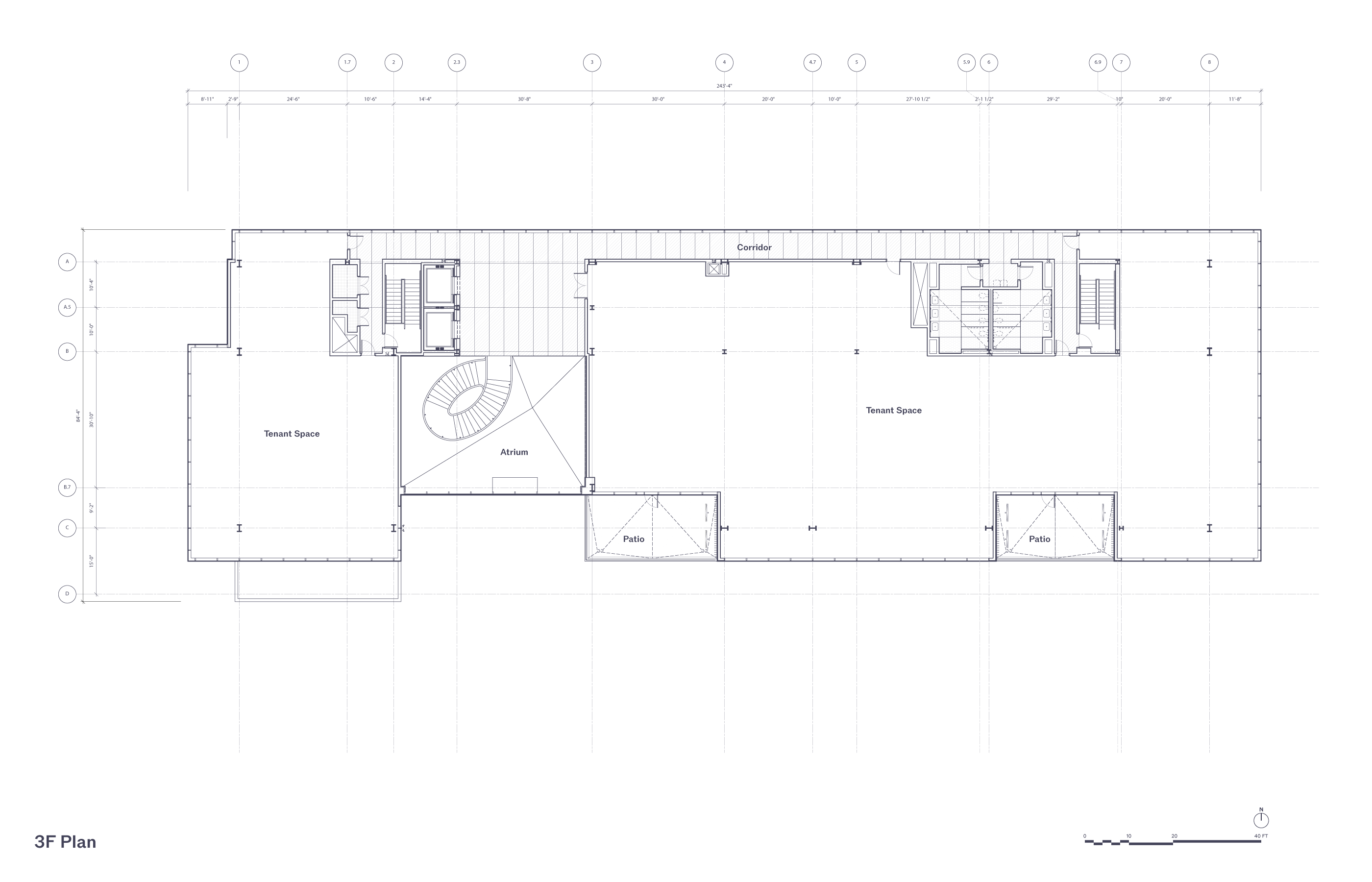
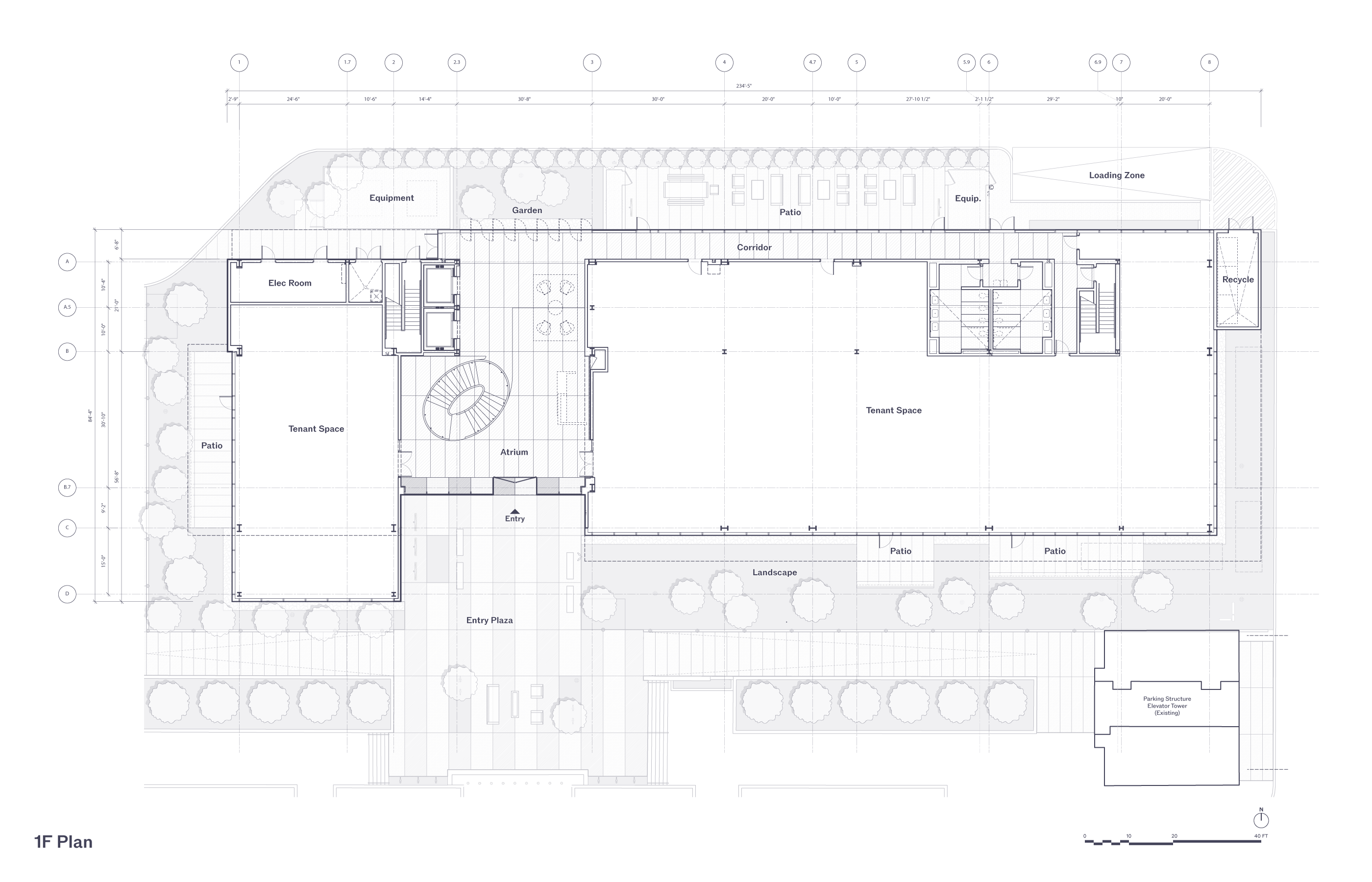
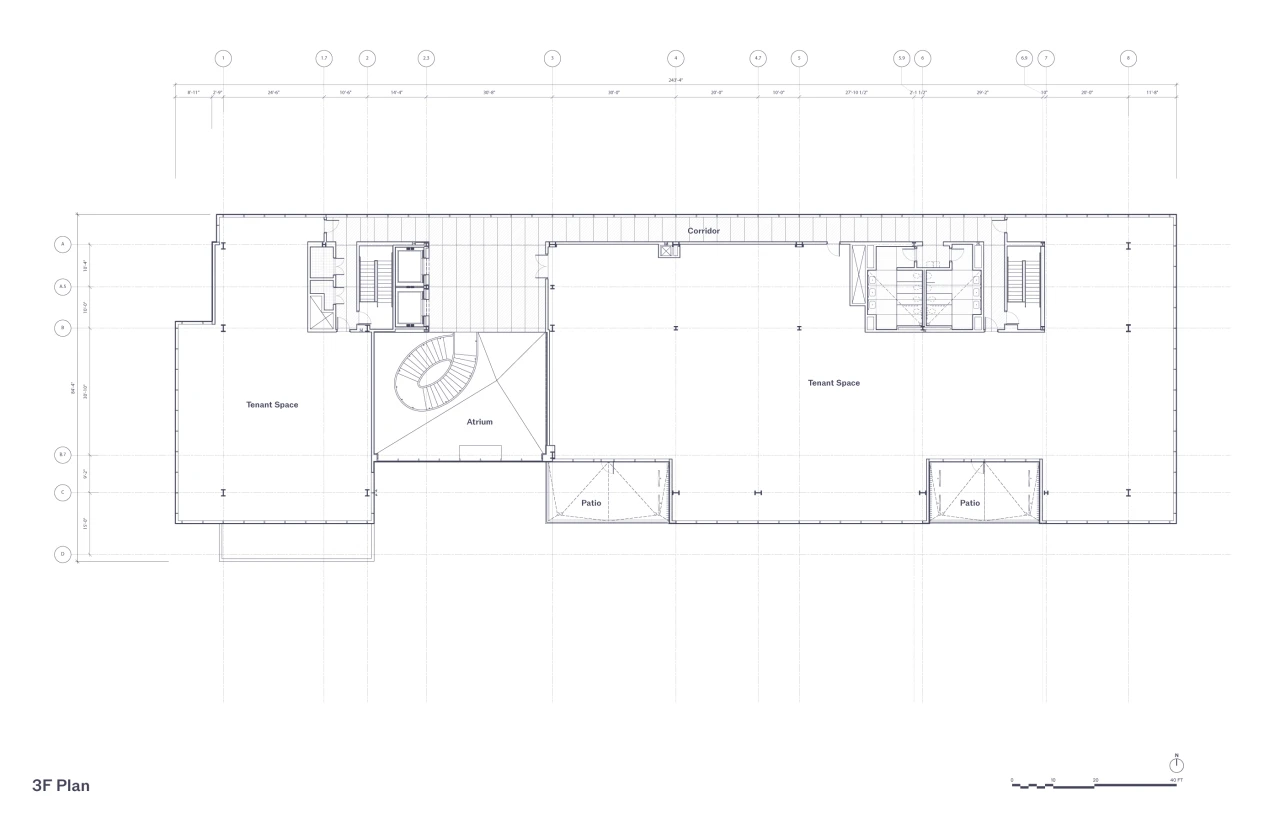
In Woodland Hills, the Trillium project redefines an existing property with the addition of a three-story, 45,000 SF Creative Office Building at its center. Once home to an outdated fitness facility, the new building modernizes the site with pedestrian-oriented features, layered circulation sequences, and a three-story atrium lobby that artfully welcomes users from the surrounding buildings and open spaces. Together with renovations across the site, the building design transforms a utilitarian program into a place for innovation, creativity, and collaboration.

Set within Warner Center, a master-planned business district in Los Angeles, the development is positioned at the heart of the property’s central open space, Trillium Park. Designed for smaller creative tenants yet adaptable to larger footprints, the building contributes to a growing network of design, technology, and entertainment industries in the San Fernando Valley. Outdoor gathering areas, activated walkways, and a unified landscape palette reinforce a distinctly Southern California sensibility, establishing the property as a connected commercial community and a desirable business address.

Trillium’s materials establish a sense of place, balancing lightness and texture to create a bright and natural aesthetic. Monumental energy-efficient glazing scales to the landscape, maximizing daylight and views, while natural wood framing and porcelain planes introduce warmth and tactility. The grand spiral stair animates the atrium as a social connector, complemented by textured concrete pavers and integrated public art throughout the site. Together, the architecture and site design create a cohesive, contemporary environment that is grounded in the landscape and open to future possibility.